ESTUDIO
PROYECTOS
NOTICIAS
ContactO
INGLÉS
ESPAÑOL
ENGLISH
×
×
×
×
×
×
×
×
×
×
×
PROYECTO
PROYECTO:
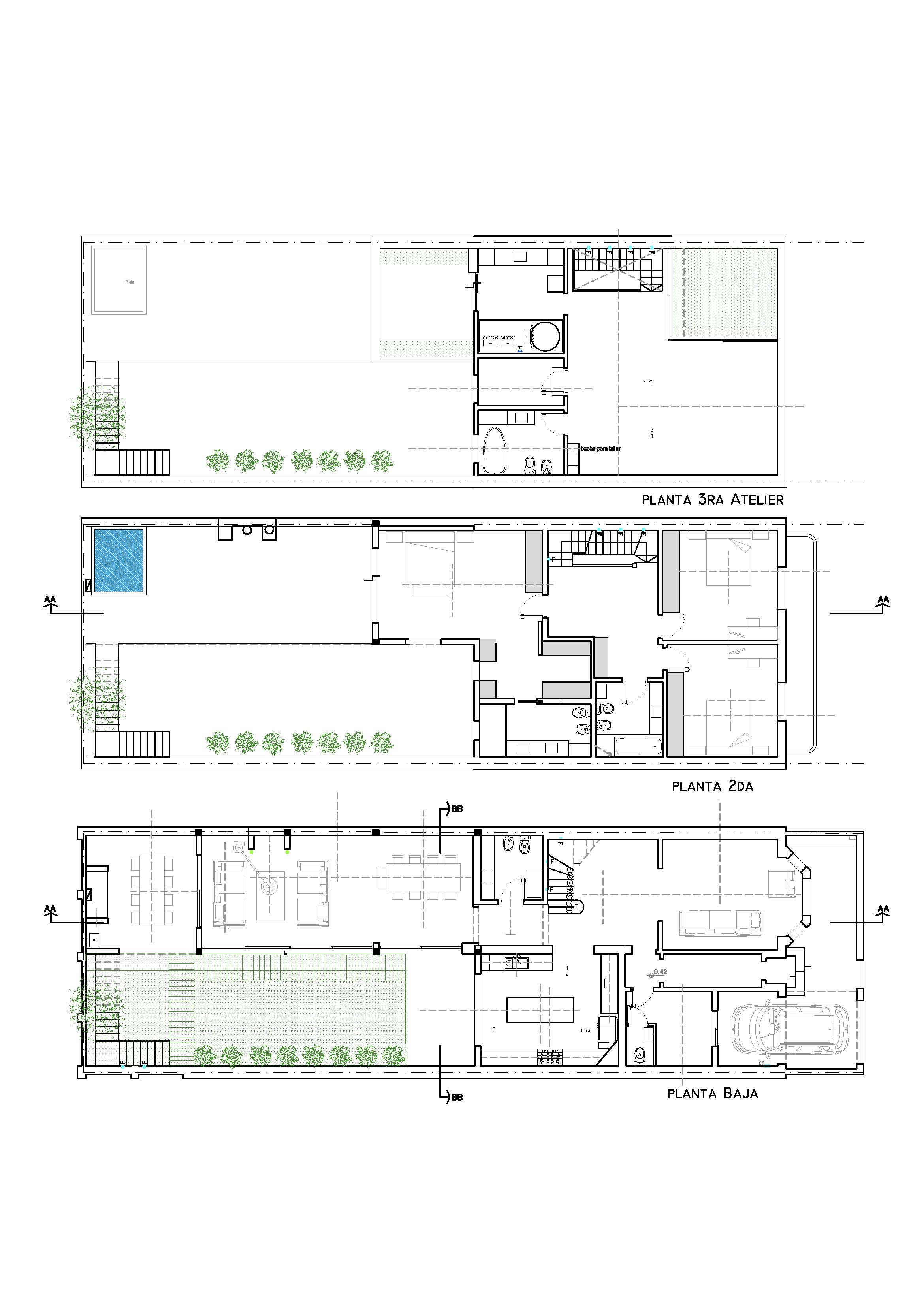
Casa Guayra
TIPO DE OBRA:
Refacción
INFO DEL PROYECTO:
Casa de 340m2 para Sofi y Bruno
LOCALIZACIÓN:
Belgrano, CABA
FECHA:
2020-2021
ARQUITECTO:
Carla Camuffo
ANTES
DESPUÉS
×
Juncal 4631 1425 Buenos Aires, Argentina
carlacam@archccway.com
(+549111) 5425-2762