STUDIO
PROJECTS
NEWS
CONTACT
ENGLISH
ENGLISH
ESPAÑOL
×
×
×
×
×
×
×
×
×
PROJECT
PROJECT:
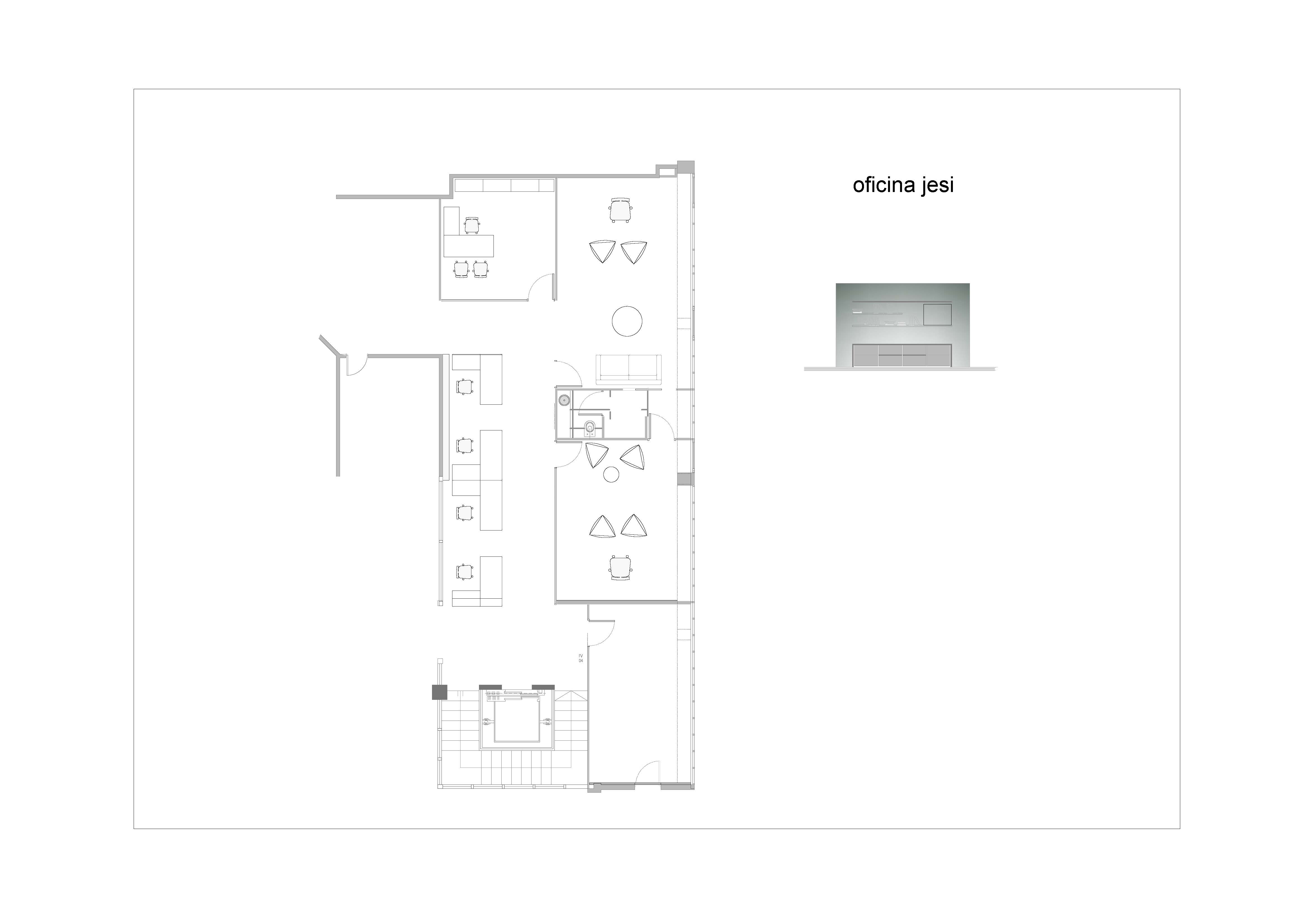
Office Romipack
TIPO DE OBRA:
Renovation
PROJECT INFO:
Offices for Jesi, Mirtiand everyone who works there at Romipack
LOCATION:
Haedo, Buenos Aires
DATE:
2017
ARCHITECT:
Carla Camuffo
×
Juncal 4631 1425 Buenos Aires, Argentina
carlacam@archccway.com
(+549111) 5425-2762