STUDIO
PROJECTS
NEWS
CONTACT
ENGLISH
ENGLISH
ESPAÑOL
×
×
×
×
×
×
×
×
×
×
×
×
×
×
×
×
×
×
×
×
PROJECT
PROJECT:
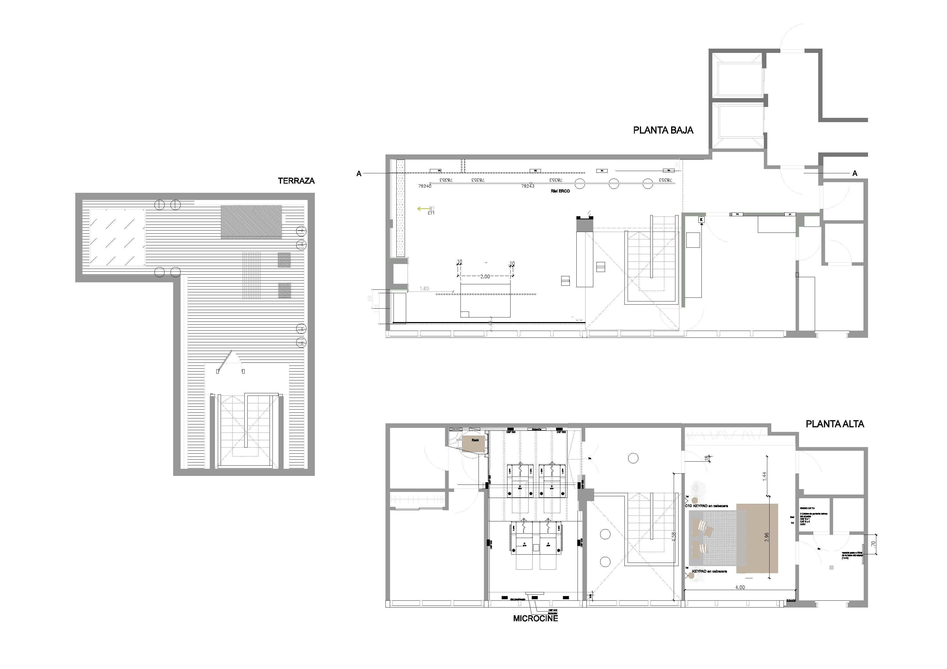
House Los Molinos Faena Triplex
TYPE OF WORK:
Renovation
LOCATION:
Puerto Madero, CABA
DATE:
2016
ARCHITECT:
Carla Camuffo
×
Juncal 4631 1425 Buenos Aires, Argentina
carlacam@archccway.com
(+549111) 5425-2762