STUDIO
PROJECTS
NEWS
CONTACT
ENGLISH
ENGLISH
ESPAÑOL
×
×
×
×
×
×
×
×
×
×
×
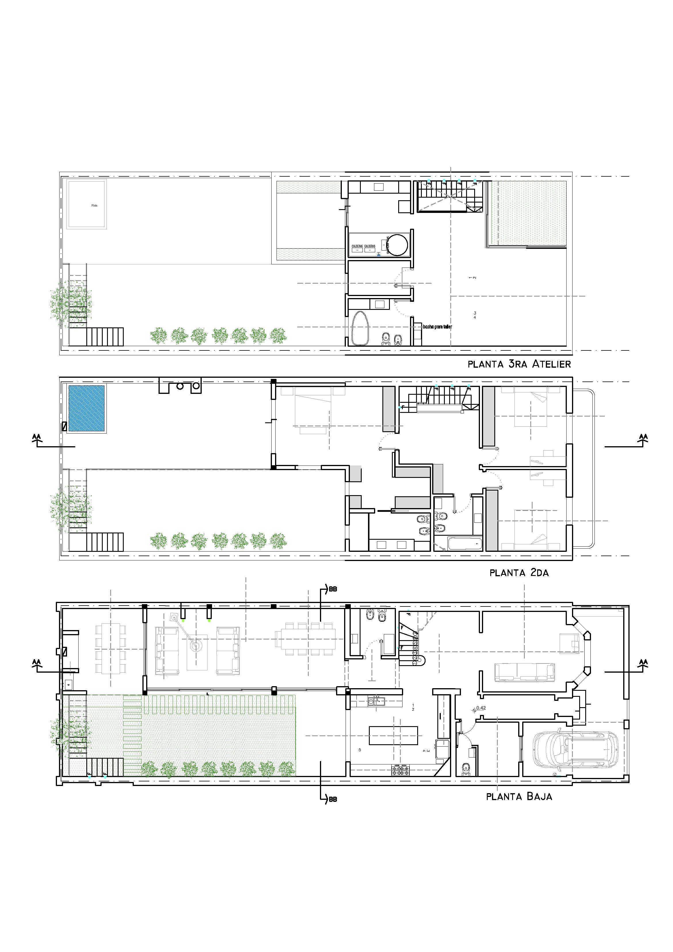
PROJECT
PROJECT:
Casa Guayra
TYPE OF WORK:
Renovation
PROJECT info:
House of 340m2 for Sofi and Bruno
LOCATION:
Belgrano, CABA
DATE:
2020-2021
ARCHITECT:
Carla Camuffo
ANTES
DESPUÉS
×
Juncal 4631 1425 Buenos Aires, Argentina
carlacam@archccway.com
(+549111) 5425-2762