STUDIO
PROJECTS
NEWS
CONTACT
ENGLISH
ENGLISH
ESPAÑOL
×
×
×
×
×
×
×
×
×
×
×
×
×
×
×
×
×
×
×
PROJECT
PROJECT:
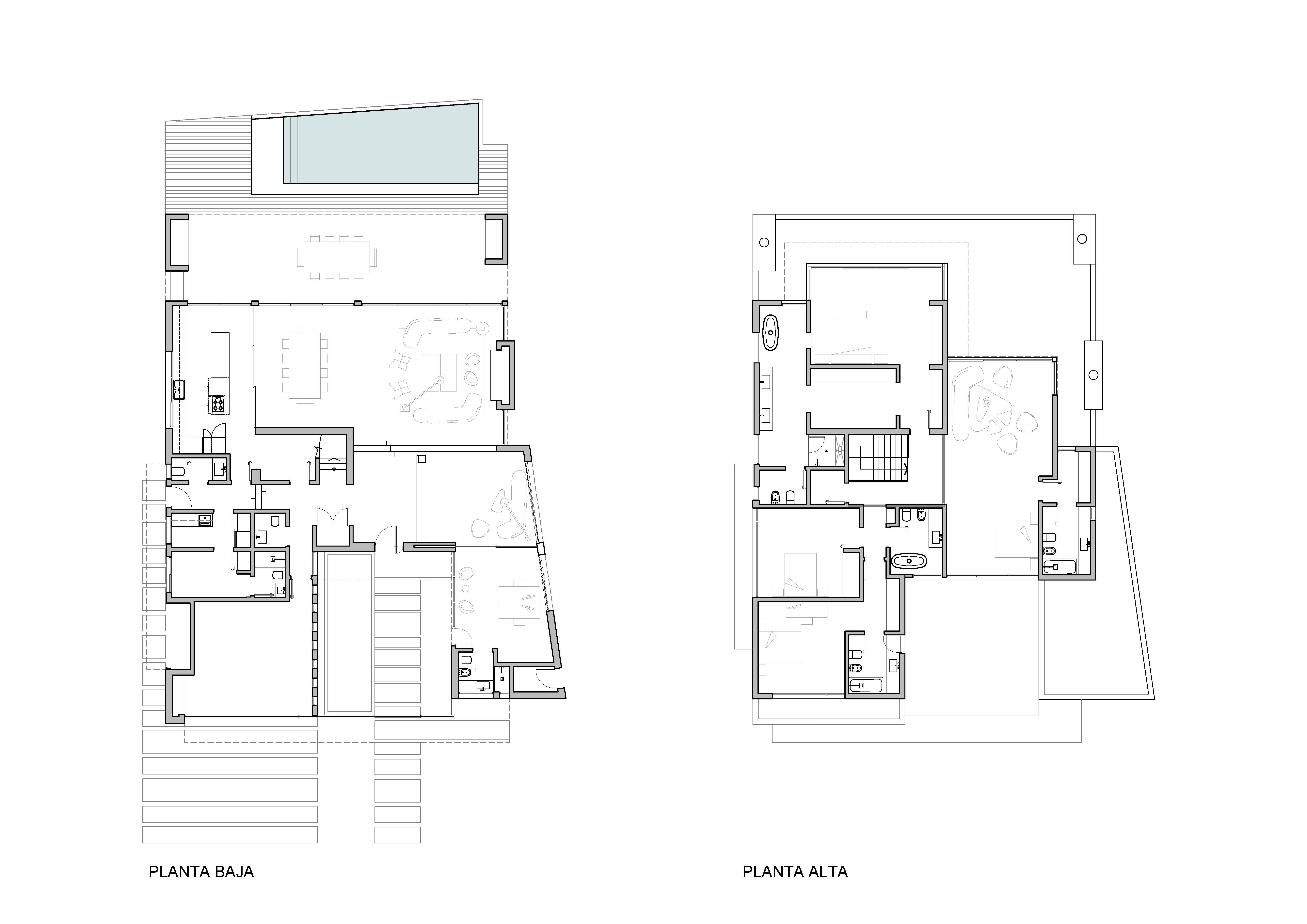
Casa en el Yatch
TYPE OF WORK:
New project
PROJECT INFO:
House of 550m2 for Oli and Maxi, team work with Maxi constructor and Oli architect
LOCATION:
Nordelta Barrio Yatch, Buenos Aires
DATE:
2016
ARCHITECT:
TEAM
×
Juncal 4631 1425 Buenos Aires, Argentina
carlacam@archccway.com
(+549111) 5425-2762