STUDIO
PROJECTS
NEWS
CONTACT
ENGLISH
ENGLISH
ESPAÑOL
×
×
×
×
×
×
×
×
×
×
×
PROJECT
PROJECT:
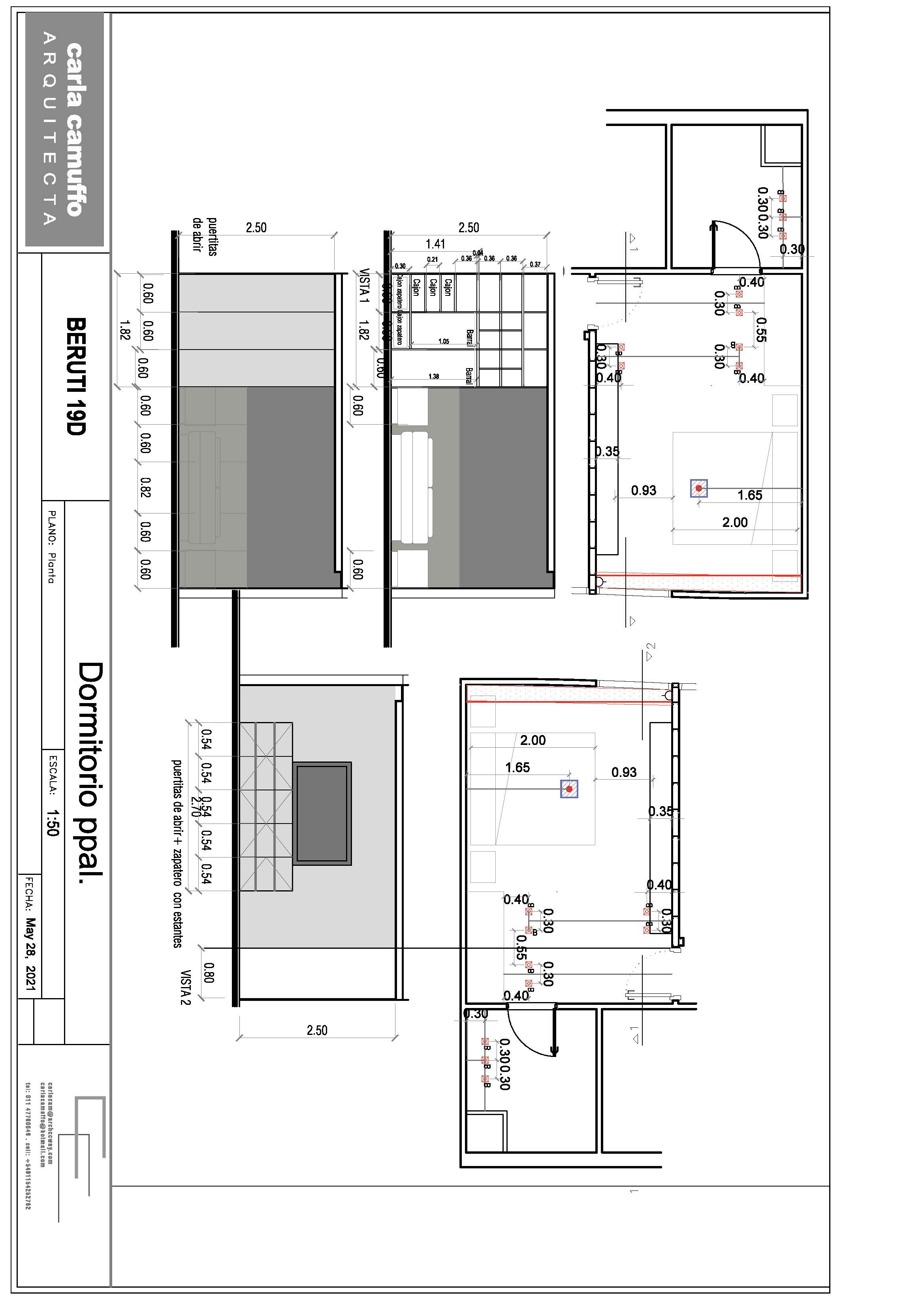
Departamento Beruti
TYPE OF WORK:
Renovation
PROJECT INFO:
Apartment of 150m2 for Moni and Alberto
LOCATION:
Palermo, CABA
DATE:
2021
ARCHITECT:
Carla Camuffo
×
×
×
Juncal 4631 1425 Buenos Aires, Argentina
carlacam@archccway.com
(+549111) 5425-2762