ESTUDIO
PROYECTOS
NOTICIAS
ContactO
INGLÉS
ESPAÑOL
ENGLISH
×
×
×
×
×
×
×
×
×
×
×
×
×
×
×
×
×
×
×
PROYECTO
PROYECTO:
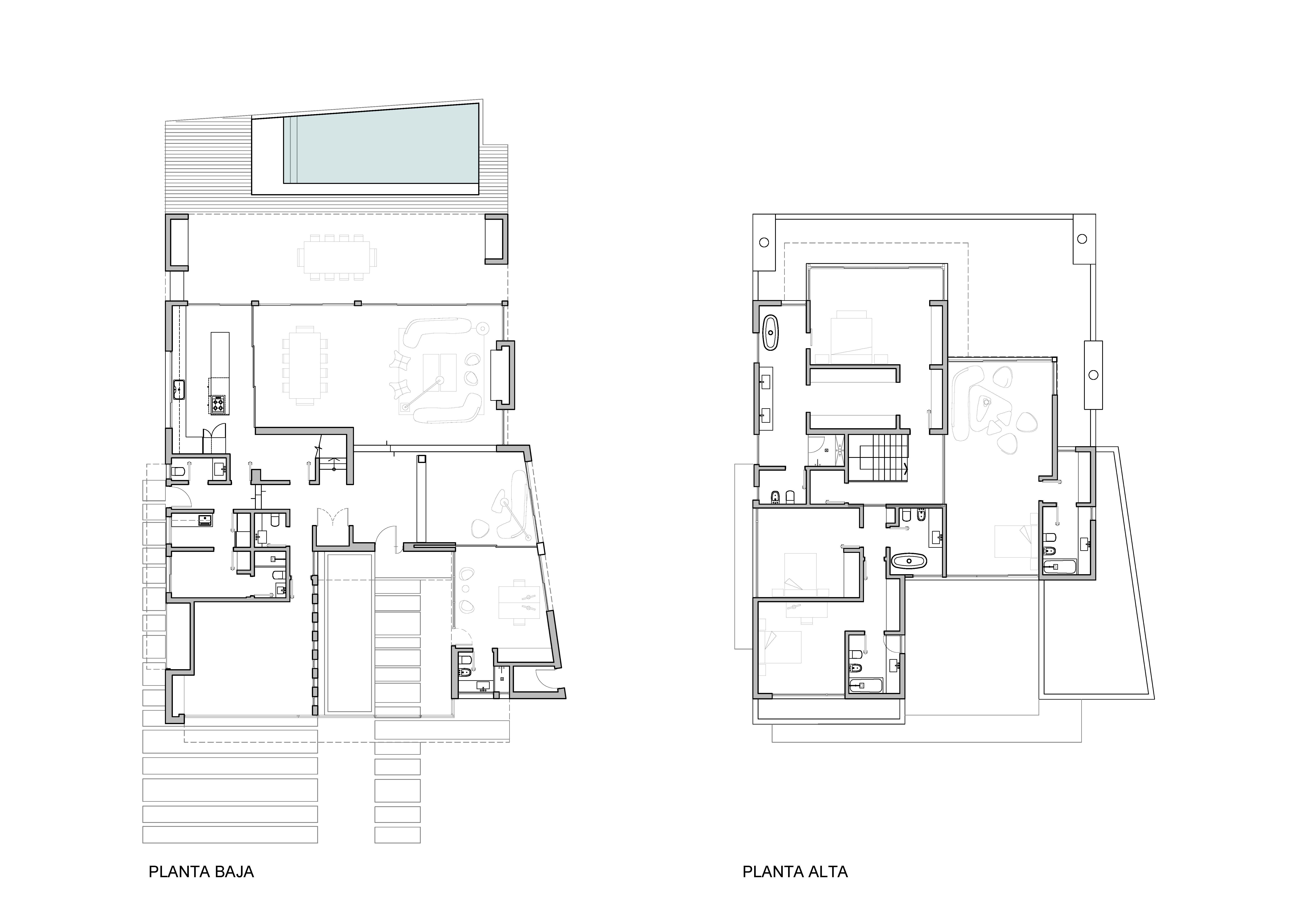
Casa en el Yatch
TIPO DE OBRA:
Obra nueva
INFO DEL PROYECTO:
Casa de 550m2 para Oli y Maxi, obra en equipo con ellos, Maxi constructor y Oli arquitecta
LOCALIZACIÓN:
Nordelta Barrio Yatch, Buenos Aires
FECHA:
2016
ARQUITECTO:
Equipo
×
Juncal 4631 1425 Buenos Aires, Argentina
carlacam@archccway.com
(+549111) 5425-2762