ESTUDIO
PROYECTOS
NOTICIAS
ContactO
INGLÉS
ESPAÑOL
ENGLISH
×
×
×
×
×
×
×
×
×
×
×
×
×
×
×
×
×
×
×
×
×
×
×
PROYECTO
PROYECTO:
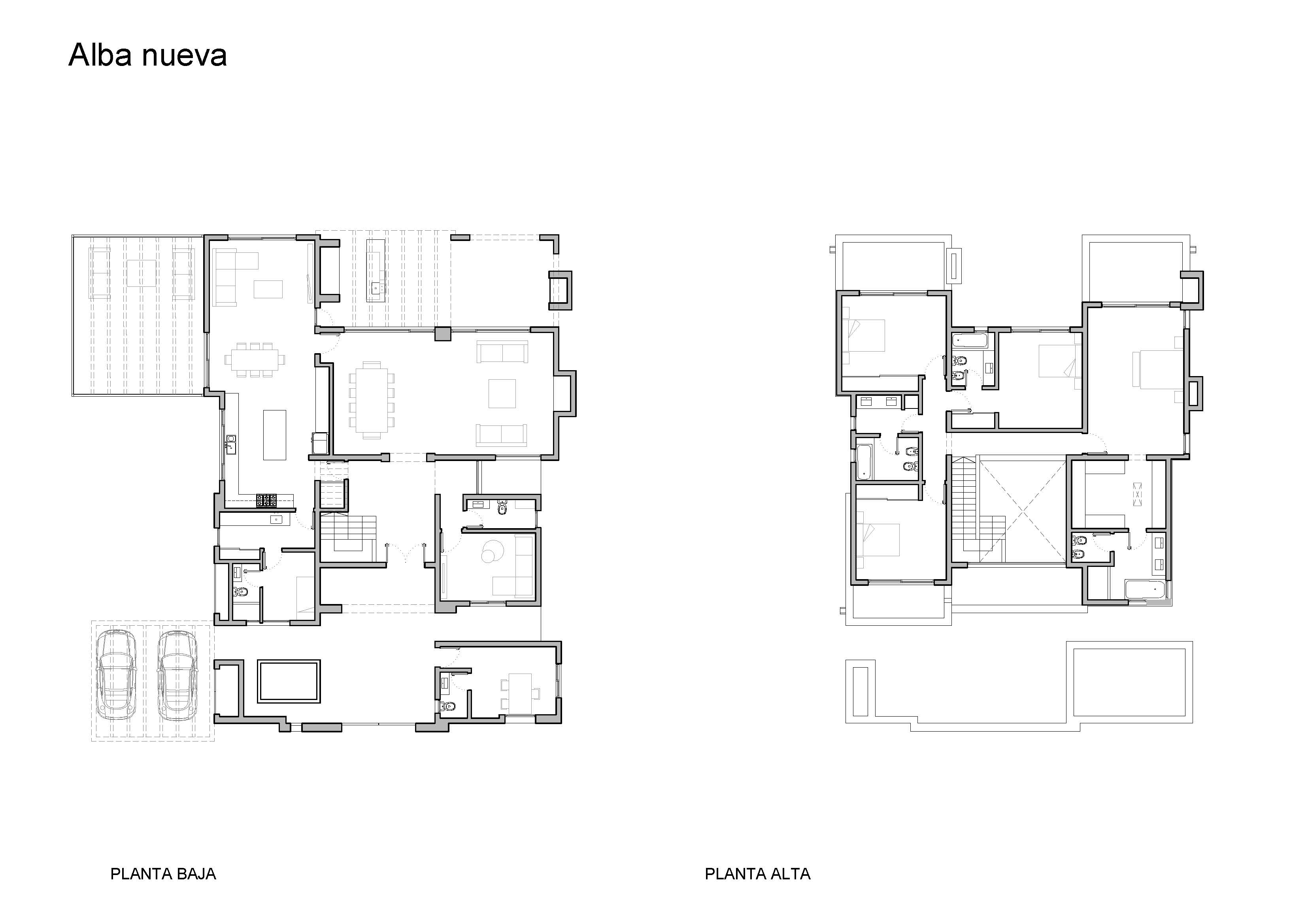
Casa Alba Nueva
TIPO DE OBRA:
Obra nueva
INFO DEL PROYECTO:
Casa de 550m2 para Fer y Pablo
LOCALIZACIÓN:
Barrio Náutico Alba Nueva, Tigre
FECHA:
2017
ARQUITECTO:
Carla Camuffo
×
Juncal 4631 1425 Buenos Aires, Argentina
carlacam@archccway.com
(+549111) 5425-2762