ESTUDIO
PROYECTOS
NOTICIAS
ContactO
INGLÉS
ESPAÑOL
ENGLISH
×
×
×
×
×
×
×
×
×
×
×
PROYECTO
PROYECTO:
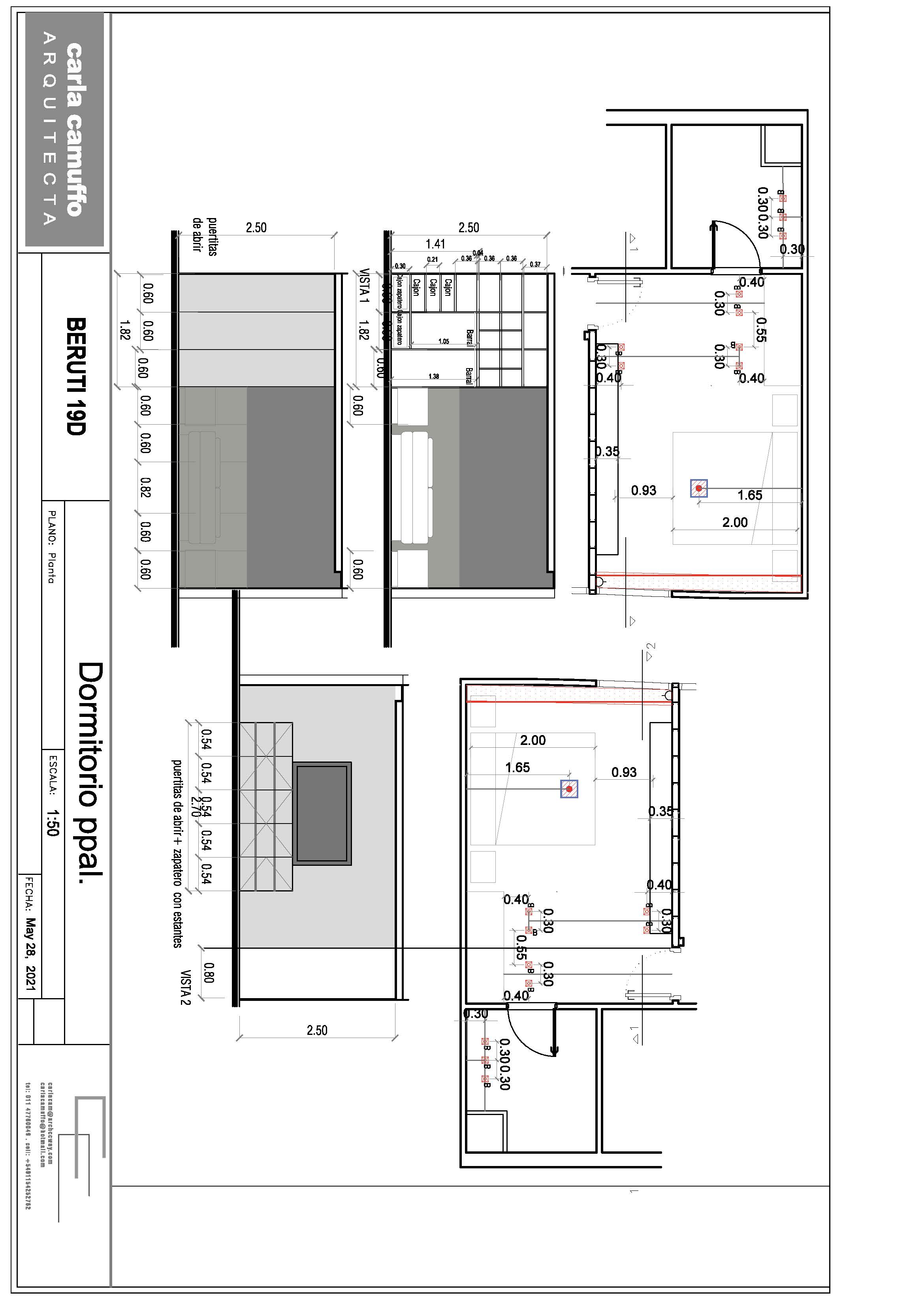
Departamento Beruti
TIPO DE OBRA:
Refacción
INFO DEL PROYECTO:
Departamento de 150m2 para Moni y Alberto
LOCALIZACIÓN:
Palermo, CABA
FECHA:
2021
ARQUITECTO:
Carla Camuffo
×
×
×
Juncal 4631 1425 Buenos Aires, Argentina
carlacam@archccway.com
(+549111) 5425-2762